Przedstawiam nowy dom pod klucz gotowy do zamieszkania który zaprojektowałem i zbudowałem na Kaszubach.
120 metrów od jeziora, na granicy Wdzydzkiego Parku Krajobrazowego, w otoczeniu lasu. Dom wyjątkowy, nowy i w standardzie premium. Dom jest sumą moich doświadczeń z kilkunastu lat prowadzenia pracowni projektowej (www.sikorawnetrza.com) oraz budowania domów na Kaszubach dla mnie oraz dla inwestorów prywatnych.  
Stworzyłem i przedstawiam Państwu produkt którego nie ma na rynku nieruchomości. Wyjątkowe miejsce pełne zieleni i otoczone jeziorami, dom o pięknej estetyce z skandynawskiego drewna. Do domu prowadzą masywne dębowe drzwi, ganek z cegły, piękne detale. 
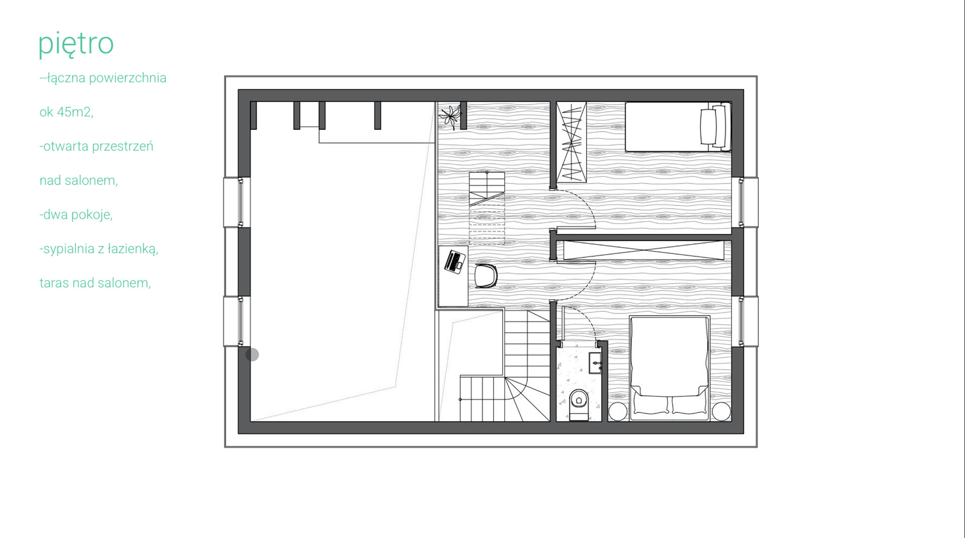
Miejsce dla osób, które cenią wygodę na co pozwala internet Starlink a także ogrzewanie na telefon: przed przyjazdem włączasz i przyjeżdżasz „na gotowe”.  Dom zawiera alarm oraz monitoring a także trójszybowe okna firmy Drutex a także 4 metrowe przesuwne drzwi na taras z którego widać łany zboża. Pomiędzy domem a jeziorem jest tylko dzika natura a jezioro jest nieopodal. Co ważne: dom jest w pełni wykończony pod klucz w zakresie terenu, budynku oraz wnętrz w zakresie elementów stałych wnętrza. W pełni gotowa kuchnia z naturalnego drewna, z płytą z wyciągiem oraz sprzętem wysokiej jakości. Podgrzewane podłoga podnosi komfort podobnie jak jacuzzi / balia w ogrodzie wraz sauną z piecem Harvia. 
To unikalny produkt na Kaszubach który zdecydowałem się stworzyć gdy wiele razy słyszałem: „nie ma nic w wysokim standardzie na Kaszubach gotowego do wprowadzenia”. To dom dla tych którzy szukają wysokiej jakości „drugiego domu” niewiele ponad godzinę od Trójmiasta.
Zdjęcia wnętrz poglądowe i przedstawiają pierwszy skończony i już sprzedany przez nas dom. Wnętrza w tym domu będą analogiczne i prace przy wnętrzu są na ukończeniu.
Zdjęcia zewnętrza przedstawiają ukończony na zewnętrz dom oraz teren.
Meble zewnętrze w cenie. Sauna i balia także. Domek gospodarczy również wraz z wyposażeniem stałym w środku. 

You may also like

Back to Top