
Zadanie było niezwykłe: stworzyć wakacyjny apartament z widokiem na 1000 lat historii Gdańska. Oto na szczycie gdańskiej kamienicy, na Wyspie Spichrzów powstała dwukondygnacyjna przestrzeń z widokiem na szczyty ceglanych kamienic i na Motławę.
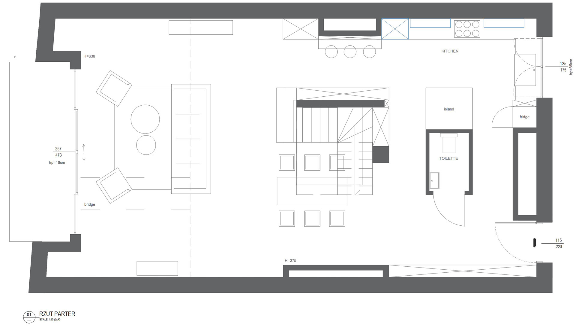
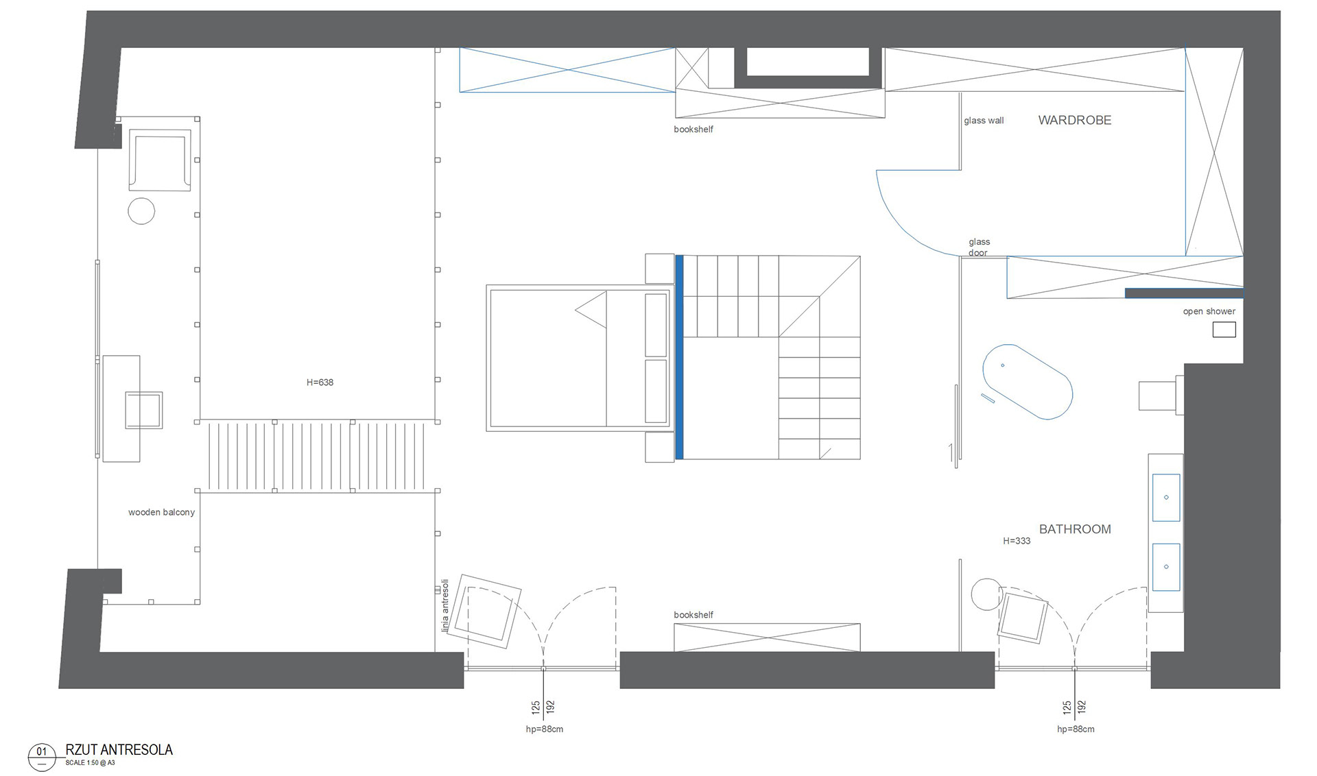
Funkcjonalnie obiekt przypomina domek jednorodzinny: na parterze znajduje się salon, kuchnia i mała łazienka a na piętrze wyjątkowa przestrzeń master bedroom z dużą łazienką i garderobą. Niepowtarzalnym elementem jest także most, który zbudowaliśmy we wnętrzu: znajduje się nad lewą częścią salonu i prowadzi do części w której znajduje się wyjątkowe miejsce pracy.






Ale to co jest niezwykłe i z czego jesteśmy bardzo dumni to wpisanie w hanzeatycką tradycję miasta inspiracji z Japonii i USA. Jak połączyć trzy odmienne tradycje? Jakie są ich wspólne wartości i elementy?
Jedną z odpowiedzi są prawdziwe lica głazów - wielkich kamieni, które znaleźliśmy u kaszubskich rzemieślników. To właśnie taki element spaja tradycję japońskich i gdańskich domostw, gdyż występował w obu kulturach jako próg zapraszający do wnętrza.
Meble i dodatki w tej przestrzeni to prawdziwy koncert współczesnego światowego designu. By przestrzeń przybrała swój finalny charakter przemierzyliśmy magazyny w Australii, Japonii, USA i oczywiście w Polsce. Efektem finalnym jest zestawienie tego co piękne, nasze i lokalne z tym co wyjątkowe i odważne jak kafle wielkoformatowe tworzące prawdziwe obrazy w tej przestrzeni.



To wnętrze pełne detali, nawiązań i subtelnego minimalizmu, który przeplata się z unikalnymi tapicerkami i wpływem wielu kultur.







Łazienka na piętrze to kwintesencja Japonii i kobiecości. Delikatna tradycyjną dalekowschodnia wanna, kwiaty i geometria na posadzce. Całość uzupełniona szczotkowaną mosiężną armaturą.
Zapraszamy do wyprawy w autorską przestrzeń, która daleka jest od oczywistości i powtarzalnych wnętrz.















